Appartement 1 chambre avec emplacement de parking

  • 109.000€
255, Rue de Visé, Jupille-sur-Meuse, Liège, Wallonie, 4020, België / Belgique / Belgien
À vendre ! SOUS OPTION !

Appartement 1 chambre avec emplacement de parking

255, Rue de Visé, Jupille-sur-Meuse, Liège, Wallonie, 4020, België / Belgique / Belgien
  • 109.000€

Description

Situé au 1er étage d’une copropriété bien entretenue, ce charmant appartement 1 chambre à rénover se trouve dans lequartier en plein développement de Jupille, à proximité des commerces, des transports en commun et des axes autoroutiers.

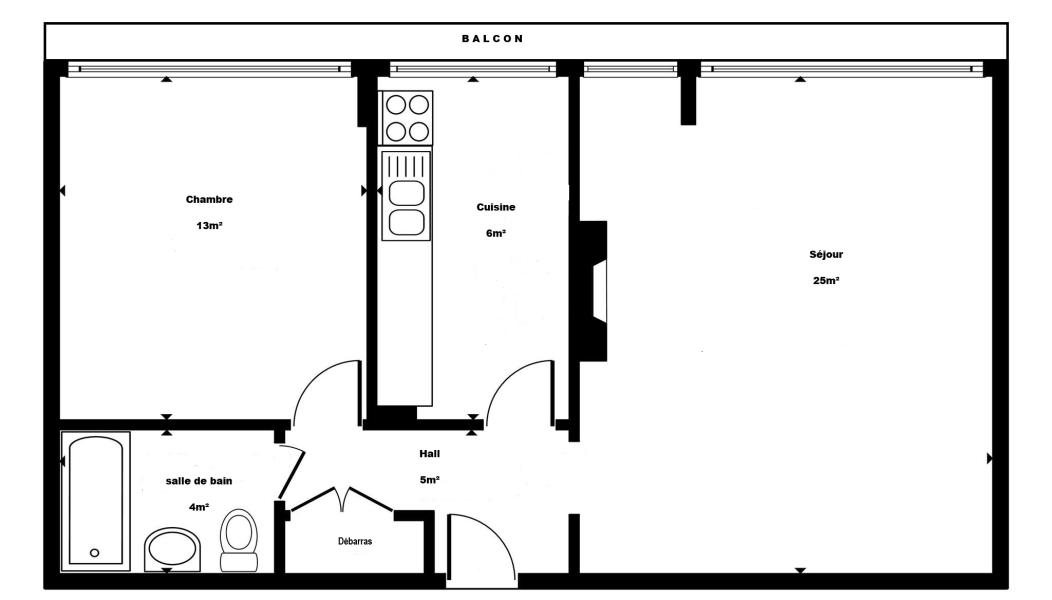
Il se compose comme suit:

Hall d’entrée avec placards, lumineux séjour, cuisine meublée et semi équipée, chambre, salle de bain avec wc, grand balcon.

En sous-sol: spacieuse cave et emplacement de voiture couvert

L’appartement est à rafraîchir/rénover (installation électrique, châssis, parachèvements).

Il est idéalement situé à proximité de toutes les facilités et se trouve dans une copropriété bien tenue.

Très beau potentiel après rénovation!

Documents de propriété

490096583_1451308795837515_3110908481536322575_n
  • Adresse rue de Visé 255
  • Ville Jupille-Sur-Meuse
  • Zip/Postal Code 4020

Détails

Mis à jour le juillet 3, 2025 à 10:14 am
  • Prix: 109.000€
  • Surface totale: 54 m²
  • Surface terrain: 54 m²
  • Chambre: 1
  • Pièces: 5
  • Salle de bains: 1
  • Garage: 1
  • Type de bien: Appartement
  • Transaction: À vendre
  • Nombre de façades: 1
  • Jardin - cour: Oui

Caractéristiques

Caractéristiques PEB

  • Classe énergétique: D
  • Consommation spécifique d'énergie primaire: 339
  • Code unique PEB: 20231120010673
  • A+
  • A
  • B
  • C
  • 339 | Energy class D
    D
  • E
  • F
  • G
  • H

Informations de contact

View Listings
Ismaïl Arrache

Contact à propros de ce bien

Compare listings

Comparer
Ismaïl Arrache
  • Ismaïl Arrache